LG 32LN540B SA solicito diagrama
LG 32LN540B SA solicito diagrama
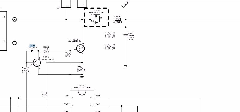
hola saludo tengo un lg 32ln540b-sa la cual hay un diodo t4 a4 pocision 802 la cual quiero saber si es zener o común o por cual puede ser reemplazado
Titulo original
solicito ayuda en conseguir diagrama
Para titular correctamente leer:
viewtopic.php?f=15&t=58425
Titulo original
solicito ayuda en conseguir diagrama
Para titular correctamente leer:
viewtopic.php?f=15&t=58425
Re: LG 32LN540B SA solñicito diagrama
Hola:el diagrama solicitado,corresponde a un Chassis:LJ36B.
viewtopic.php?f=181&t=58186
___________________
viewtopic.php?f=181&t=58186
___________________
Re: LG 32LN540B SA solicito diagrama
si ese es el que necesito saludos
Re: LG 32LN540B SA solicito diagrama
¿pudo bajar el archivo?
Re: LG 32LN540B SA solicito diagrama
no no pude
Re: LG 32LN540B SA solicito diagrama
dicha plaqueta tengo un diodo en corto posición 802 con la inscripción diodo superficial TA A4 dicho valor lo desconozco con que valor se puede suplantar desde ya muchas gracias att
Re: LG 32LN540B SA solicito diagrama
no lo puedo ver
Re: LG 32LN540B SA solicito diagrama
Hola:
dice claramente:Bajar archivo
dice claramente:Bajar archivo
Re: LG 32LN540B SA solicito diagrama
hugo93 fijate si puedes bajarlo ahora.
- Adjuntos
-
- LG - Chassis LJ36B-42LN5460.rar
- (6.41 MiB) Descargado 901 veces
-
servitelsh
- Principiante

- Mensajes: 3
- Registrado: Mar Nov 13, 2012 10:55 am
- Contactar:
Re: LG 32LN540B SA solicito diagrama
El diodo identificado como D802 es el 1N4148

